名鉄常滑線 「常滑」駅 「多屋」駅利用
土地+建物 2,990万円~
CENT FAMILIE 常滑駅北分譲
■全棟モデルハウス販売
既設の家具・照明付きで販売します
『来場予約・資料請求』タブよりご予約、資料請求ください。
標準仕様よりグレードを少し上げた住宅設備と天然木をご体感できるモデルハウスが完成しました。
どこか懐かしさや奥ゆかしさを感じる落ち着いた建物デザインは常滑市の青空と豊かな自然に調和する街並みです。
モデルハウス
常滑市錦町分譲【コンセプトモデルハウス】&【平屋モデルハウス】
平屋モデルハウス完成見学会開催!
全館空調、天然木の温かみ、洗練されたデザインと機能性をご体感いただけます!
天然木を贅沢に使用した温かみのある空間
ハイグレードモデルのキッチンや洗面化粧台を搭載
分譲地のモデルハウスに相応しい細部までこだわりぬいた間取りやデザインです。
区画図・間取り
コミュニティで守る安心の暮らし
開発道路を含む9区画の新しい街並みは、分譲地のコミュニティでのセキュリティを確立。
2×6工法による耐震性や耐火性に優れた住宅、20年の住宅保証制度で安心と安全な暮らしを提供します。
-
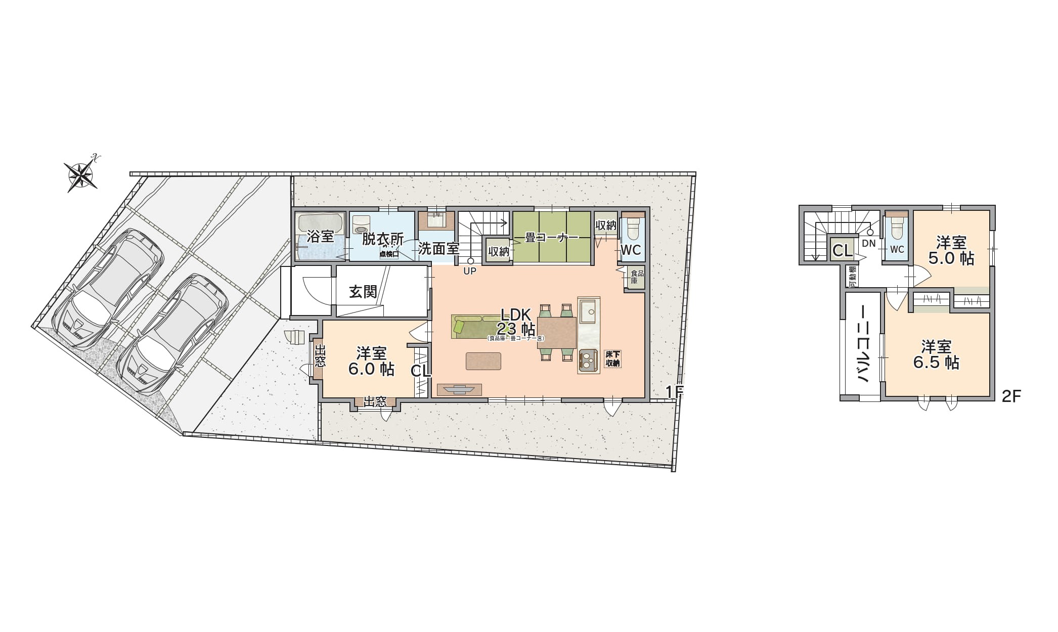
【広々玄関と畳コーナーがある家】
風雅の家
No.2
広い玄関にはシューズボックスと6段の可動棚があり、収納量豊富です。
使い勝手の良い脱衣室と分離の洗面化粧台と畳コーナー、ハイ天井のLDKは広く明るい間取りになっています。3LDK+畳コーナー
■敷地面積/128.27㎡(38.80坪)
■延床面積/103.08㎡(31.18坪)
■1階面積 /55.90㎡(16.90坪)
■2階面積 /45.55㎡(13.77坪)SOLD OUT
-
【 平屋モデルハウス 】
端正の家
No.06
平屋モデルハウス
ゆとりある敷地を有効に活かし生活できる「豊かさ」をデザイン。
全館空調や天然木をふんだんに使用したぬくもりを感じるおうちです。3LDK
■敷地面積/183.06㎡(55.37坪)
■建築面積/88.03㎡(26.62坪)
■延床面積/88.03㎡(26.62坪)
■1階面積/88.03㎡(26.62坪)SOLD OUT
-
【駐車場3台とグレージュデザインの家】
風雅の家
No.09
グレージュデザインに仕上げたジャパンディスタイルのおうち。
インナーバルコニーやウォークインクローゼット、LDK続きの畳コーナーとあったら嬉しい空間をご用意しました。4LDK
■敷地面積/153.76㎡(46.51坪)
■延床面積/103.84㎡(31.40坪)
■1階面積/52.98㎡(16.02坪)
■2階面積/50.86㎡(15.38坪)SOLD OUT
-
【4居室と豊富な収納の家】
風雅の家
No.01
1階には小上がりの畳スペース。
2階には使い勝手の良い広さの4室の間取り。
収納も豊富で空間を上手に活用して生活できます。4LDK+畳コーナー
■敷地面積/128.64㎡(38.91坪)
■延床面積/102.99㎡(31.15坪)
■1階面積/52.53㎡(15.89坪)
■2階面積/50.46㎡(15.26坪)SOLD OUT
-
【 コンセプトモデルハウス 】
風雅の家
No.03
常滑市錦町分譲モデルハウス
洗練された住宅設備やデザイン、機能性をぜひご体感ください。
12月中旬までご見学可能です。3LDK+畳コーナー+納戸
■敷地面積/128.29㎡(38.80坪)
■延床面積/102.46㎡(30.99坪)
■1階面積 /55.34㎡(16.74坪)
■2階面積 /47.12㎡(14.25坪)SOLD OUT
-
【平屋みたいな2階建て】
端正の家
No.05
1階部分は平屋のようにすべてワンフロアで完結する間取り。
2階の2室はお子様や収納部屋としてお使いいただけます。3LDK
■敷地面積/184.73㎡(55.88坪)
■延床面積/104.76㎡(31.68坪)
■1階面積/70.39㎡(21.29坪)
■2階面積/34.37㎡(10.39坪)SOLD OUT
-
【スタンダードコンパクトハウス】
風雅の家
No.04
無駄を削ぎ落しコストを抑えつつ、快適な生活を送れる間取りをご用意しました。
分譲地のメリットもしっかりと享受できるおすすめの区画です。3LDK
■敷地面積/131.06㎡(39.64坪)
■延床面積/86.54㎡(26.17坪)
■1階面積/43.89㎡(13.27坪)
■2階面積/42.65㎡(12.90坪)SOLD OUT
標準仕様・性能
多彩な設備仕様
快適な暮らしを支える選りすぐりの住宅設備。
実用性とデザイン性を兼ね備えた設備は、豊かな日常生活を演出し、家族の笑顔が広がる空間を創造します。
標準仕様
-
フラット対面キッチン
インテリアと調和するデザイン性、たっぷりしまえる収納量、動作に合わせた使いやすさまで。かしこく選び、心地よい暮らしを叶える、長く愛せるキッチンです。
-
スマートキー(LIXIL)
スマートフォンが玄関キーに早変わり。スマートフォンをバッグやポケットに入れておけば、ドアのボタンを押すだけで施解錠できます。
-
天然木質素材
天然木しか出すことのできない温かみのある木の質感。天然木であることから1枚1枚木目や色が微妙に異なり、その自然な感じが落ち着いた雰囲気を演出してくれます。
-
玄関ドア
-
バスルーム
-
フローリング
-
ハイサッシ
家族が集まるリビング・ダイニングの窓は2.2mのハイサッシを採用しました。より多くの光や風を取り込むことが可能です。
-
ハイ天井
一般的な天井より高くすることで視界が広がり、開放感が生まれます。またお部屋を広く感じることができます。
標準性能
-
子育てグリーン住宅支援事業の支援対象
2050年カーボンニュートラルの実現に向け、新築住宅について、物価高騰の影響を受けやすい子育て世帯などに対して、補助金の支援が受けられます。本物件は長期優良住宅に該当します。
※国土交通省HPより
※要件、条件があります。詳しくはHPをご覧ください。
-
耐震等級3
耐震等級3を取得した高性能な住まいです。一般的な住宅の1.5倍の耐震性能があります。
-
断熱等級5
断熱性能は国がZEH基準にしている断熱等級5の上のHEAT20 G1を取得しています。
※UA値:外皮平均熱貫流率、室内と外気の熱の出入りのしやすさの指標で値が小さいほど断熱性能が高くなります。
-
地震に強い2×6(ツーバイシックス)工法を採用
2×4(ツーバイフォー)工法を超えたハイブリッド工法です。
※掲載の参考写真・イラスト・概念図は、実際のものとは多少異なります。
※注文住宅の場合はお客様のご要望に沿った内容にできます。
アクセス・周辺環境
豊かな自然と利便性を享受した街
駅やスーパーは徒歩10分圏内、高速道路のインターも近くにある通勤や生活に便利な立地。
大型商業施設やビーチも近くにあり、休日は家族でショッピングやレジャーも楽しめます。
アクセス
名鉄常滑線「常滑」駅 徒歩9分(約720m)
名鉄常滑線「常滑」駅より
「金山」駅(直通)
37〜48分
「名鉄名古屋」駅(直通)
43〜54分
「中部国際空港」駅(直通)
4〜7分
カーナビでお越しの方は下記の住所をご入力ください
愛知県常滑市錦町三丁目52番地
周辺環境
-
ドラッグストア コスモス 常滑錦店
徒歩4分(約260m)
-
ベイシアフードセンター 常滑店
徒歩15分(約1,130m)
-
常滑西小学校
徒歩19分(約1,510m)
-
常滑中学校
自転車14分(約3,400m)
-
イオンモール常滑
車 4分(約1,920m)
-
コストコ
車 4分(約1,520m)
-
常滑温泉マーゴの湯
-
ワンダーフォレストきゅりお
-
やきもの散歩道
-
りんくうビーチ
-
中部国際空港 セントレア
-
名鉄常滑線「多屋」駅
徒歩 9分(約650m)
-
コストコ 中部空港倉庫店
車 4分(約1,520m)
-
名鉄常滑線「常滑」駅
徒歩 9分(約720m)
-
イオンモール 常滑店
車 4分(約1,920m)
-
こども園あるこ
徒歩 6分(約460m)
-
錦公園
徒歩 7分(約550m)
-
ヤマダデンキテックランド常滑店
徒歩 5分(約340m)
-
ニシキ歯科
徒歩 1分(約80m)
-
カインズ 常滑店
徒歩 14分(約1,110m)
-
中部国際空港
車 13分(約6,100m)
-
スーパーマーケットバロー常滑店
徒歩 15分(約1,180m)
※上記の徒歩分数は最短地点のもので計測しています。最長地点は50m加算されます。※地図上の概測距離を徒歩分数は1分=80m、自転車分数は1分=250m、車分数は時速30kmで計算した概算であり、端数は切り上げています。交通状況により所要分数は異なります。※交通所要時間は、通勤時の乗り換え、待ち時間を含めた所要時間を記載しています。※通勤時は7:00以降の乗車で8:30までに目的の駅に到着としています。
協和の家づくり
物件概要
- 所在地
- 愛知県常滑市錦町三丁目 519番地
- 交通
- 名鉄常滑線『常滑』駅徒歩9分
- 販売戸数
- 4区画
- 土地権利
- 所有権
- 地目
- 宅地
- 都市計画
- 市街化区域
- 用途地域
- 準工業地域
- 建蔽率
- 60%
- 容積率
- 200%
- 取引態様
- 売主


