JR中央本線 「春日井」駅 徒歩約6分
土地+建物価格 4,590万円~
外観パース 完成内観写真
春日井駅東 小木田町分譲
全2棟並び外観パース B棟完成内観写真
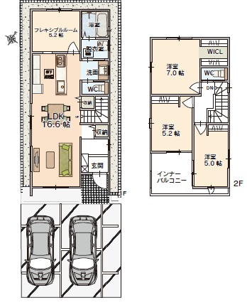
区画図・間取り
【全2区画南向き】駅近で利便性の高い生活環境
全2区画、南向きで陽当たり抜群の分譲地です。
前面道路は6m以上あり、駐車もスムーズ。土地の形状も整っているため、理想の建物をプランしやすいのが魅力です。
都市ガスも完備し、快適な新生活をサポートします。
-
【A棟プラン】
A棟
建売
1階に独立の「フレキシブルルーム」を設けました。お子様の部屋、趣味の部屋、ゲストルームなど、それぞれのシーンに合わせてお使いいただけます。洗面台も独立型で脱衣室と別になっておりとても使いやすく、デザインも上質感のある「カスタムバニティ」を採用。2階7帖洋室には服や季節ものなどの荷物が多くても困らないウォークインクローゼット完備。南向きの立地を活かしたインナーバルコニーは雨の日でも困らない十分な広さのアウトドアリビングスペースです。
4LDK
■敷地面積/120.04㎡(36.31坪)
■延床面積/103.11㎡(31.19坪)SOLD OUT
-
【B棟プラン】
B棟
建売
リビング南側の畳スペースをあわせて20帖以上の広々LDKを実現。キッチンから家族の様子が分かるように対面キッチンを採用。洗面台は使いやすく、デザインも上質感のある「カスタムバニティ」。服や季節ものなどの荷物が多くても困らない納戸、ウォークインクローゼット完備。南向きの立地を活かしたバルコニーは憩いの空間としても生活に安らぎを与えます。
4LDK
■敷地面積/120.05㎡(36.31坪)
■延床面積/99.99㎡(30.24坪)SOLD OUT
標準仕様・性能
多彩な設備仕様
快適な暮らしを支える選りすぐりの住宅設備。
実用性とデザイン性を兼ね備えた設備は、豊かな日常生活を演出し、家族の笑顔が広がる空間を創造します。
標準仕様
-
ナスタ 宅配ボックス
ナスタの宅配ボックスは、再配達の手間や置き配による盗難リスクをゼロに近づける、今の時代に欠かせない住宅設備です。
-
フラットキッチン
インテリアと調和するデザイン性、たっぷりしまえる収納量、動作に合わせた使いやすさまで。かしこく選び、心地よい暮らしを叶える、長く愛せるキッチンです。
-
フローリング
-
ハイ天井
一般的な天井より高くすることで視界が広がり、開放感が生まれます。またお部屋を広く感じることができます。
-
洗面化粧台
カスタム・バニティ
-
スマートキー(LIXIL)
タグキーをバッグやポケットに入れておけば、ドアのボタンを押すだけで施解錠できます。
標準性能
-
耐震等級3
耐震等級3を取得した高性能な住まいです。一般的な住宅の1.5倍の耐震性能があります。
-
断熱等級5
断熱性能は国がZEH基準にしている断熱等級5以上を取得しています。
※UA値:外皮平均熱貫流率、室内と外気の熱の出入りのしやすさの指標で値が小さいほど断熱性能が高くなります。
-
優れた耐震性と耐火性で世界が認める2×4(ツーバイフォー)工法を採用
床・壁・天井の6面で構成される「面構造」で建物を支えるのが特徴です。地震や台風などの外力を建物全体で受け止めて分散させることで、高い耐震性を実現します。その他、耐火性や、気密性の高さから生まれる断熱性・防音性にも優れており、安全で快適な住まいづくりを可能にする工法工法です。
※掲載の参考写真・イラスト・概念図は、実際のものとは多少異なります。
※注文住宅の場合はお客様のご要望に沿った内容にできます。
アクセス・周辺環境
徒歩圏内にすべてが揃う、便利な好立地
JR春日井駅まで徒歩6分、駅まで平坦な道のりで通勤・通学に便利です。
スーパー、コンビニ、保育園、小・中学校がすべて徒歩12分圏内にあり、ご家族の形態を問わず生活しやすい環境が整っています。
アクセス
JR中央本線「春日井」駅 徒歩約6分
カーナビでお越しの方は下記の住所をご入力ください
愛知県春日井市小木田町66
周辺環境
-
JR春日井駅
徒歩6分(約500m)
-
篠原小学校
徒歩11分(約850m)
-
東部中学校
徒歩12分(約900m)
-
貴船保育園
徒歩9分(約650m)
-
セブンイレブン
徒歩9分(約650m)
-
トミダナフコ
徒歩9分(約700m)
※上記の徒歩分数は最短地点のもので計測しています。最長地点は50m加算されます。※地図上の概測距離を徒歩分数は1分=80m、自転車分数は1分=250m、車分数は時速30kmで計算した概算であり、端数は切り上げています。交通状況により所要分数は異なります。※交通所要時間は、通勤時の乗り換え、待ち時間を含めた所要時間を記載しています。※通勤時は7:00以降の乗車で8:30までに目的の駅に到着としています。
協和の家づくり
物件概要
- 所在地
- 愛知県春日井市小木田町66
- 交通
- JR中央線「春日井」駅徒歩約6分
- 販売区画数
- 2区画
- 土地権利
- 所有権
- 地目
- 雑種地
- 都市計画
- 市街化区域
- 用途地域
- 第一種住居地域
- 建蔽率
- 60%
- 容積率
- 200%
- 接道状況
- 南東側幅約 6.0mの公道に接道
- 取引態様
- 売主


