バス停「上大手」徒歩2分/ JR中央本線「勝川」駅まで乗車約16分
販売価格 3,590万万円~
土地価格 1,500万円~
ミライズ春日井大手町分譲
☆新発売☆4月18日(土)4月19日(日)にてご予約制にて現地説明会を開催いたします!
※平日のご対応も可能となります。
現地宅地造成完了いたしました!
「仕事も子育ても“余裕”が生まれる街」
好評につき早くも現在3件のご成約となりました。
現在建築条件付き土地6区画、モデルハウス(建売)4棟(2階建/平屋)が発売中となります。
大手小学校徒歩9分、子育て世代に嬉しい立地に全13区画の新しい街並みが誕生。回遊動線や豊富な収納、家事ラク設備を取り入れた建売住宅で、忙しい毎日をサポートします。LDKは開放感のある設計で家族の時間もゆったり。駐車3台可、将来を見据えた暮らしやすさを実現。限定2棟3590万円の建売あり。また自由設計用地も同じ分譲地内で同等価格で建築が可能です。まずは現地で広さと住み心地をご体感ください。
イメージパース・モデルハウス物件
1枚目:全13邸の街並み分譲
3枚目:No.5区画 2階建てイメージパース
4枚目:No.1区画 平屋イメージパース
5~8枚目:当社施工物件
【No.5棟 対象】
借入額:3,590万円(税込)
頭金:180万円
金利:0.97%(現在の金利参照)
返済年月:40年
⇒月々返済額:85,741円
(金利は変動する可能性がございます。諸費用は別途となっております。お客様により、借り入れ条件が異なる場合がございます。)
区画図・間取り
全13区画の街並み分譲(子育てしやすい住環境の分譲地)
都市ガスなど生活インフラも整っており、自由な家づくりを叶えながら、快適な新生活をスタートできます。
-
No.1
間取り図
3790万円
3LDK+Sの平屋となります。
広々20帖のLDKが特徴と収納量が豊富となります。SOLD OUT
-
No.5
間取り図
3,590万円
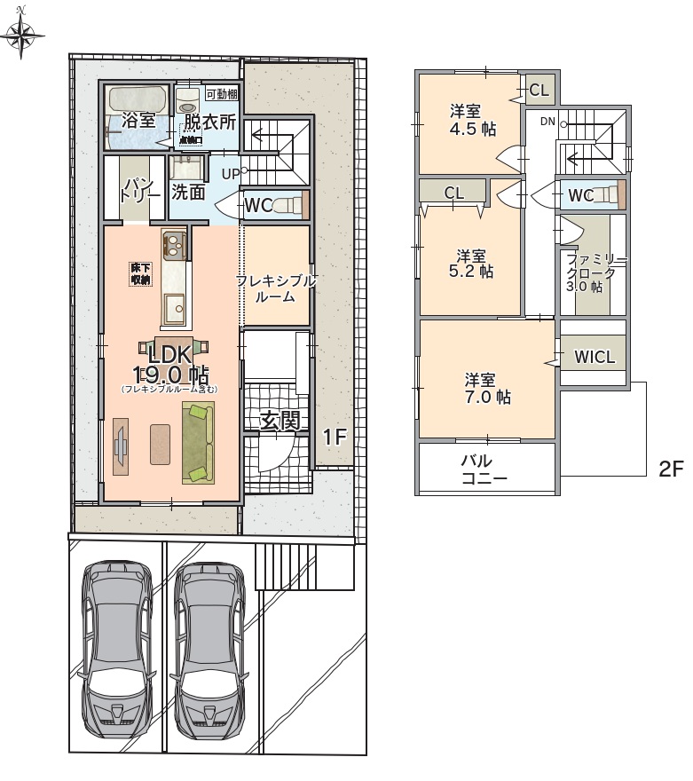
約31坪の4LDKとなります。駐車場3台駐車可能!
LDKの続き間の畳コーナーがありLDKが広々見えます。SOLD OUT
-
No.7
間取り図
3850万円
最大19帖の広いLDKとなっています。
またキッチン隣に大容量のパントリーにある為、
保存食のストックなどもできます。SOLD OUT
-
No.10
間取り図
3990万円
17.5帖のLDKに4.5帖のフレキシブルルームが隣にあります。
開放感があり、最大22帖のLDKとなります。
SOLD OUT
標準仕様・性能
多彩な設備仕様
快適な暮らしを支える選りすぐりの住宅設備。
実用性とデザイン性を兼ね備えた設備は、豊かな日常生活を演出し、家族の笑顔が広がる空間を創造します。
標準仕様
-
ナスタ 宅配ボックス
ナスタの宅配ボックスは、再配達の手間や置き配による盗難リスクをゼロに近づける、今の時代に欠かせない住宅設備です。
-
フラットキッチン
インテリアと調和するデザイン性、たっぷりしまえる収納量、動作に合わせた使いやすさまで。かしこく選び、心地よい暮らしを叶える、長く愛せるキッチンです。
-
フローリング
高い耐久性やお手入れのしやすさが特徴のフローリングです。また、デザインが豊富であり、人気の高い仕様です。
-
ハイ天井
一般的な天井より高くすることで視界が広がり、開放感が生まれます。またお部屋を広く感じることができます。
-
洗面化粧台(カスタム・バニティ)
デザインと機能性が両立した使い勝手の良い洗面化粧台です。ボウルが広く、お掃除しやすいのがポイントです!
-
スマートキー(LIXIL)
タグキーをバッグやポケットに入れておけば、ドアのボタンを押すだけで施解錠できます。
標準性能
-
みらいエコ住宅2026補助金対象物件
当社の物件は長期優良住宅認定物件となります。2026年度みらいエコ住宅補助金がもらえる為、費用を抑える事ができます。
-
耐震等級3
耐震等級3を取得した高性能な住まいです。一般的な住宅の1.5倍の耐震性能があります。
-
断熱等級5
断熱性能は国がZEH基準にしている断熱等級5以上を取得しています。
※UA値:外皮平均熱貫流率、室内と外気の熱の出入りのしやすさの指標で値が小さいほど断熱性能が高くなります。
-
優れた耐震性と耐火性で世界が認める2×4(ツーバイフォー)工法を採用
床・壁・天井の6面で構成される「面構造」で建物を支えるのが特徴です。地震や台風などの外力を建物全体で受け止めて分散させることで、高い耐震性を実現します。その他、耐火性や、気密性の高さから生まれる断熱性・防音性にも優れており、安全で快適な住まいづくりを可能にする工法工法です。
※掲載の参考写真・イラスト・概念図は、実際のものとは多少異なります。
※注文住宅の場合はお客様のご要望に沿った内容にできます。
アクセス・周辺環境
利便性と安らぎが調和した、住みやすい街
勝川駅まで平坦な道のりで、通勤・通学に便利です。スーパーも徒歩圏内にあり、日々の暮らしに便利な好立地。
閑静な住宅街に位置するため、落ち着いた毎日を送ることができます。
アクセス
バス停「上大手」徒歩2分 JR中央本線「勝川」駅まで乗車約16分
カーナビでお越しの方は下記の住所をご入力ください
愛知県春日井市大手町2丁目135番他
周辺環境
-
大手小学校
徒歩9分(約700m)
-
鷹来中学校
徒歩13分(約1,000m)
-
大手保育園
徒歩9分(約700m)
-
ミニストップ
徒歩7分(約500m)
-
ナフコ岩野店
徒歩12分(約1,000m)
-
泉公園
徒歩3分(約230m)
-
春日井市民病院
徒歩19分(約1,500m)
※上記の徒歩分数は最短地点のもので計測しています。最長地点は50m加算されます。※地図上の概測距離を徒歩分数は1分=80m、自転車分数は1分=250m、車分数は時速30kmで計算した概算であり、端数は切り上げています。交通状況により所要分数は異なります。※交通所要時間は、通勤時の乗り換え、待ち時間を含めた所要時間を記載しています。※通勤時は7:00以降の乗車で8:30までに目的の駅に到着としています。
協和の家づくり
物件概要
- 所在地
- 春日井市大手町2丁目134他
- 交通
- バス停「上大手」徒歩2分/JR中央本線「勝川」駅まで乗車約16分
- 販売区画数
- 6区画建築条件付き土地 建売モデル(平屋No.1) 建売モデル(2階建No.5) 建売モデル(2階建No.7) 建売モデル(2階建No.10)
- 土地権利
- 所有権
- 地目
- 宅地
- 都市計画
- 市街化区域
- 用途地域
- 第一種中高層住居専用地域
- 建蔽率
- 60%
- 容積率
- 200%
- 接道状況
- 前面道路/北側幅、西側幅、南側幅約6.0mの公道に接道
- 取引態様
- 売主


