JR中央本線 「春日井」駅 徒歩18分
区画図・間取り
基礎、建物の躯体、完成モデルで見れる、全5区画。
基礎・躯体・完成、3つの家を1日で見比べ!
街と自然が調和する全5区画の街並み。
木のぬくもりが息づく空間を見て、触れて、感じる
家づくりの魅力を体感できます。
-
【A棟プラン】
A棟
基礎工事中
GX志向型住宅水準の家。省エネ性能に優れ、オール電化で光熱費の削減も期待できます。玄関横の土間収納はアウトドア用品の収納に重宝され、南側のお庭では家庭菜園も可能な十分の広さです。LDKは広々20帖に繋がる小上がりスペースあり。お子様の遊び場、ちょっとしたくつろぎスペースとしてもお使えいただけます。2階には日当たり良好のバルコニーがあります。
3LDK
■敷地面積/130.67㎡(39.52坪)
■延床面積/102.69㎡(31.06坪)SOLD OUT
-
【B棟プラン】
B棟
建物の躯体工事中
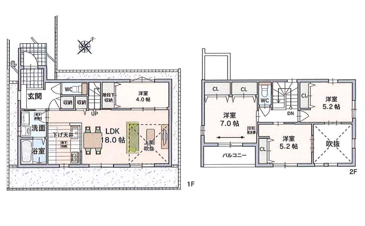
ハイサッシと吹抜けが織りなす大空間。無垢材を使った仕上げは、広々とした空間にゆとりとくつろぎを生みます。洗面台は独立しており、「カスタムバニティ」を採用。
4LDK
■敷地面積/130.80 ㎡(39.56 坪)
■延床面積/98.96㎡(29.93坪)SOLD OUT
-
【C棟プラン】
C棟
建物の躯体工事中
玄関土間収納付き。独立した洗面台「カスタムバニティ」採用。ハイサッシと吹抜けが織りなす大空間。スタディカウンターは家族共有のスペースに。2階には広いバルコニーあり。
4LDK
■敷地面積/130.83 ㎡(39.57 坪)
■延床面積/104.75㎡(31.68坪)SOLD OUT
-
【E棟プラン】
E棟
完成モデルハウス
キッチン下げ天井には無垢の福杉を採用。リビングと繋がる個室は用途に富んだ多目的スペースとして使えます。吹き抜けありの大空間。
4LDK
■敷地面積/131.43㎡(39.75 坪)
■延床面積/99.43㎡(30.07坪)SOLD OUT
標準仕様・性能
多彩な設備仕様
快適な暮らしを支える選りすぐりの住宅設備。
実用性とデザイン性を兼ね備えた設備は、豊かな日常生活を演出し、家族の笑顔が広がる空間を創造します。
※各区画によって仕様が異なります
標準仕様
-
キッチン
インテリアと調和するデザイン性、たっぷりしまえる収納量、動作に合わせた使いやすさまで。かしこく選び、心地よい暮らしを叶える、長く愛せるキッチンです。
-
フローリング
木目の織りなす繊細な風合い、時の積み重なりを感じる上質感。あたたかみがありながら、洗練された空間をデザインしております。
-
下げ天井
天然木独特の質感がアクセントとなり、温かみのある落ち着いた雰囲気を演出しております。
-
吹き抜け窓
お部屋にも「窓」を。光と風を通して明るく開放的な空間づくりが楽しめます。
-
スマートキー(LIXIL)
スマートフォンが玄関キーに早変わり。スマートフォンをバッグやポケットに入れておけば、ドアのボタンを押すだけで施解錠できます。
-
洗面化粧台
カスタム・バニティ
-
バスルーム
-
トイレ
-
ハイ天井
一般的な天井より高くすることで視界が広がり、開放感が生まれます。またお部屋を広く感じることができます。
標準性能
-
子育てグリーン住宅支援事業の支援対象
2050年カーボンニュートラルの実現に向け、新築住宅について、物価高騰の影響を受けやすい子育て世帯などに対して、補助金の支援が受けられます。本物件は長期優良住宅に該当します。
※国土交通省HPより
※要件、条件があります。詳しくはHPをご覧ください。
-
耐震等級3
耐震等級3を取得した高性能な住まいです。一般的な住宅の1.5倍の耐震性能があります。
-
断熱等級5
断熱性能は国がZEH基準にしている断熱等級5の上のHEAT20 G1を取得しています。
※UA値:外皮平均熱貫流率、室内と外気の熱の出入りのしやすさの指標で値が小さいほど断熱性能が高くなります。
-
地震に強い2×6(ツーバイシックス)工法を採用
2×4(ツーバイフォー)工法を超えたハイブリッド工法です。
※掲載の参考写真・イラスト・概念図は、実際のものとは多少異なります。
※注文住宅の場合はお客様のご要望に沿った内容にできます。
アクセス・周辺環境
緑豊かな環境で育む、あたたかい家族の暮らし。
鳥居松小学校徒歩1分!現地すぐ南側には赤堀公園、徒歩5分で月見幼稚園もあり、
スーパー・コンビニなども充実した安心の子育て環境です!
アクセス
JR中央本線「春日井」駅 徒歩約18分
カーナビでお越しの方は下記の住所をご入力ください
愛知県春日井市鳥居松町三丁目189番190番
周辺環境
-
JP春日井駅
徒歩18分(約1,450m)
-
イオン 春日井店
徒歩14分(約1,100m)
-
赤堀公園
徒歩2分(約140m)
-
鳥居松小学校
徒歩1分(約50m)
-
柏原中学校
徒歩14分(約1,100m)
-
月見幼稚園
徒歩5分(約350m)
-
ファミリーマート春日井鳥居松三丁目店
徒歩6分(約450m)
-
春日井市交通児童遊園
徒歩8分(631m)
-
B&Dドラッグストア鳥居松店
徒歩5分(349m)
-
ヤマナカ鳥居松店
徒歩16分(1,230m)
※上記の徒歩分数は最短地点のもので計測しています。最長地点は50m加算されます。※地図上の概測距離を徒歩分数は1分=80m、自転車分数は1分=250m、車分数は時速30kmで計算した概算であり、端数は切り上げています。交通状況により所要分数は異なります。※交通所要時間は、通勤時の乗り換え、待ち時間を含めた所要時間を記載しています。※通勤時は7:00以降の乗車で8:30までに目的の駅に到着としています。
協和の家づくり
物件概要
- 所在地
- 愛知県春日井市鳥居松町三丁目189番190番
- 交通
- JR中央本線「春日井」駅徒歩18分
- 販売区画数
- 2区画
- 土地権利
- 所有権
- 地目
- 宅地・畑
- 都市計画
- 市街化区域
- 用途地域
- 第一種住居地域
- 建蔽率
- 60%
- 容積率
- 200%
- 接道状況
- 前面道路/北西側幅約8.0mの公道に接道
- 取引態様
- 売主


